vente appartement Paris

985 000€ - 110m² - Paris

Appartement 6 pièces - 985 000€

Photos disponibles de ce bien.

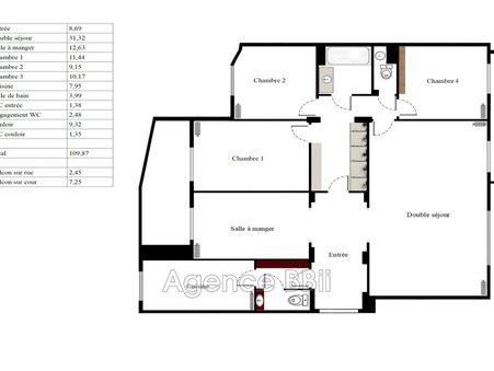
PORTES OUVERTES - mercredi 4 fÃ?©vrier 14h30 - 16h30 - vendredi 6 fÃ?©vrier 10h -12h - vendredi 6 fÃ?©vrier 14h -16h - samedi 7 fÃ?©vrier 10h - 14h A proximitÃ?© de la place des Droits de l''enfant (mÃ?©tro AlÃ?©sia), dans un immeuble bourgeois et familial de bon standing, grand appartement modulable de 5/6 piÃ?¨ces avec deux balcons dont un de 7m² au calme et ensoleillÃ?© l''aprÃ?¨s-midi d''une largeur de 1,5m. Cuisine amÃ?©ricaine amÃ?©nageable, placards intÃ?©grÃ?©s, deux salles d''eau, une cave. A refaire entiÃ?¨rement Ã? votre goÃ?»t. Immeuble ravalÃ?© en 2022-2023.- Plans d''amÃ?©nagements et devis disponibles sur demande. Visites possibles tous les jours, y compris samedis, dimanches et jours fÃ?©riÃ?©s. Marion BATELLIER, agence BBii, 0634686245 Honoraires agence 35 000ââ??¬ inclus dans le prix de 985 000 ââ??¬ Â