vente maison Geispolsheim

440 000€ - 275m² - Geispolsheim

Maison 11 pièces - 440 000€

Photos disponibles de ce bien.

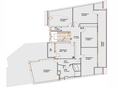
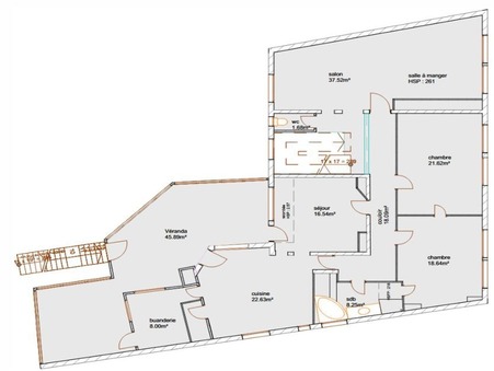
Nouveau et en exclusivitÃ?© ! COUP DE CÃ?'UR pour ce grand duplex-maison en copropriÃ?©tÃ?© de 275m² habitables (318 m² au sol), avec jardin de plus de 300m², et qui offre de beaux volumes (8 chambres, 11 piÃ?¨ces) et de belles possibilitÃ?©s d'amÃ?©nagement en habitation simple ou bi-famille, ou profession libÃ?©rale. SituÃ?© dans une rue de Geispolsheim Village recherchÃ?©e pour son calme (Rue Charles de Wendel), sans vis-Ã? -vis, vous serez au calme absolu !Ce grand duplex est situÃ?© dans une maison bi-famille Ã? Geispolsheim Village, Ã? 15 minutes du centre de Strasbourg. Au rez-de-chaussÃ?©e se trouve une ancienne pharmacie (bureaux dÃ?©sormais). Le duplex constitue tout le reste de la maison : 1er Ã?©tage avec vÃ?©randa de 43m² + 2eme Ã?©tage avec 2 terrasses, + mezzanine aux combles, et un trÃ?¨s beau terrain Ã? lâ€â?¢arriÃ?¨re de la maison de 310m², avec places de parkings et jardin piscinable. Un escalier permet d'accÃ?©der directement au jardin depuis le 1er Ã?©tage.Vous pourrez disposer :- Au 1er Ã?©tage : un grand hall dâ€â?¢entrÃ?©e donnant sur un salon/sÃ?©jour de 37,5 m². Vous trouverez aussi une salle Ã? manger et une cuisine (avec cellier de 9m²) donnant sur la grande vÃ?©randa de 43,6m², 2 belles chambres (22,1m² et 16,4m²), une salle de bains avec baignoire et douche, et des toilettes.- Au 2eme Ã?©tage, vous pourrez disposer de 5 autres grandes chambres (15,5m², 16,8m², 12,84m², 22,25m², 11,38m²) et dâ€â?¢un bureau (8m²). Vous pourrez bÃ?©nÃ?©ficier Ã? cet Ã?©tage de 2 terrasses (17m² et 4m²), dâ€â?¢une salle de bains avec baignoire et douche et toilettes sÃ?©parÃ?©s.- Au 3Ã?¨me Ã?©tage sous les combles, se trouve une mezzanine pouvant servir de bureau, ainsi quâ€â?¢un grand grenier de 72m² pour de nombreux rangements.Le duplex est dotÃ?© dâ€â?¢un magnifique terrain avec nombreux stationnements, le tout sur un terrain piscinable. Vous pourrez bÃ?©nÃ?©ficier aussi de beaux arbres fruitiers et nombreuses plantations existantes.Plusieurs caves au sous-sol de la maison : permettent de nombreux rangements.Local vÃ?©lo - dÃ?©pendance pour encore plus de rangement.Pas de charges de copropriÃ?©tÃ?© spÃ?©cifiques : chauffage collectif gaz de ville avec compteurs individuels. Syndic bÃ?©nÃ?©vole.A visiter sans tarder ! Pour de plus amples renseignements et pour organiser une visite, veuillez contacter Marie Thorel de lâ€â?¢Agence Robin des Toits.Dans une copropriÃ?©tÃ?© de 2 lots. Aucune procÃ?©dure n'est en cours. Classe Ã?©nergie E, Classe climat D Montant estimÃ?© des dÃ?©penses annuelles d'Ã?©nergie pour un usage standard : entre 3270.00 ââ??¬ et 4470.00 ââ??¬ sur les annÃ?©es 2021, 2022 et 2023 (abonnements compris). Les informations sur les risques auxquels ce bien est exposÃ?© sont disponibles sur le site GÃ?©orisques : georisques.gouv.fr. Votre conseiller ROBIN DES TOITS : Marie ThorelAgent commercial (Entreprise individuelle) RSAC 538222613 RCP 127100479.Lâ€â?¢Agence Robin des Toits, une agence engagÃ?©e ! Nous reversons un pourcentage de nos commissions Ã? des associations reconnues dâ€â?¢intÃ?©rÃ?ªt publique et donnons la possibilitÃ?© de dÃ?©fiscaliser ce don.